Galerie » Galeria projekt użytkownika taniaf23
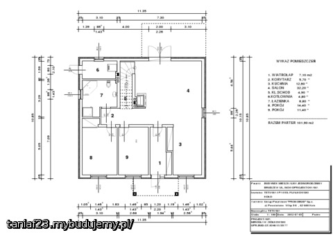
to jest parter
ostatnia zmiana 27 sierpień 2012
Komunikat